¾È³çÇϼ¼¿ä. Ç®ÇϿ콺 ÀÎÅ׸®¾îÀÔ´Ï´Ù.
- ûÁÖ Çпø ÀÎÅ׸®¾î / µ¿³²Áö±¸ ÇǾƳëÇпø ÀÎÅ׸®¾î -
¼Ò°³Çص帱°Ô¿ä :)

C O N C E P T ¢º Ŭ·¡½ÄÇÑ ºÐÀ§±âÀÇ ÇǾƳëÇпø
- ¾ËÂù °ø°£±¸¼ºÀÌ µ¸º¸À̴ ûÁÖ ÇǾƳëÇпø ÀÎÅ׸®¾î

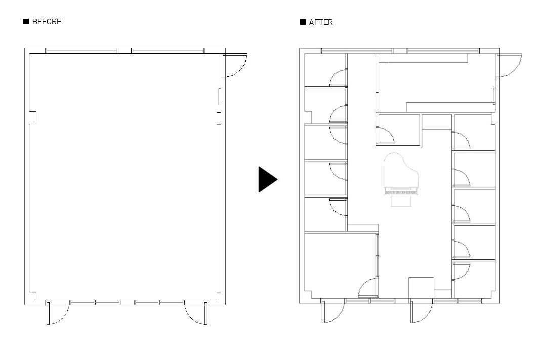
¡á °ø»çÀü/ÈÄ
- Â¥ÀÓ»õ ÀÖ´Â °ø°£ ±¸¼º.
È¿À²ÀûÀÎ ·¹À̾ƿô ¼³°è¸¦ ÅëÇØ ·¹½¼½ÇÀ» ÃÖ´ë·Î ±¸¼ºÇÏ¿´´Ù.

¡á Ȧ
- ¹Ù´ÚÀº ¿ìµå µ¥ÄÚŸÀÏÀ» Ç층º»ÆÐÅÏÀ¸·Î ½Ã°øÇÏ¿© µû¶æÇÏ°í »ç¶û½º·¯¿î ºÐÀ§±â¸¦ ¿¬ÃâÇÏ¿´´Ù.
- º®Ã¼´Â ÀüüÀûÀ¸·Î ÈÀÌÆ®ÅæÀ» »ç¿ëÇÏ¿© ¹à°í ±ò²ûÇÑ ´À³¦À» ¿¬ÃâÇÏ¿´´Ù.
- ÀÔ±¸ Á¤¸é À̹ÌÁö¿ù¿¡ ÈÀÌÆ® ¸¶ºíŸÀÏÀ» ½Ã°øÇÏ¿© ·Î¸ÇƽÇÏ°í °í±Þ½º·¯¿î ºÐÀ§±â¸¦ ¿¬ÃâÇÏ¿´´Ù.
- ±×·£µåÇǾƳë ÀÂÊ¿¡´Â °í±Þ½º·¯¿î ¼§µé¸®¿¡ Á¶¸íÀ» ½Ã°øÇÏ¿© ¿ì¾ÆÇÑ ´À³¦À» ´õÇØÁÖ¾ú´Ù.
- µµ¾î´Â ¾ÆÄ¡Çü µðÀÚÀο¡ ÆÄ½ºÅÚ »öÀ» »ç¿ëÇÏ¿© »ç¶û½º·´°í Æí¾ÈÇÑ ºÐÀ§±â¸¦ ¿¬ÃâÇÏ¿´´Ù.
- °ñµåÄ÷¯ÀÇ ½Ç³»°£ÆÇ, Á¶¸í, ¼ÕÀâÀÌ µîÀ¸·Î Æ÷ÀÎÆ®¸¦ ÁÖ¾î °í±Þ½º·¯¿òÀ» ´õÇØÁÖ¾ú´Ù.
- ¼ö³³ÀåÀº Ŭ·¡½ÄÇÑ µðÀÚÀÎÀ¸·Î Á¦ÀÛ.
- ¿øÀå½ÇÀº ÈÀÌÆ® ÇÁ·¹ÀÓ+Åõ¸íÀ¯¸®·Î ³Ð¾îº¸À̵µ·Ï ¿¬ÃâÇÏ¿´°í, »ó´ã ½Ã ½Ã¾ßÂ÷´ÜÀ» À§ÇØ ºí¶óÀε带 ¼³Ä¡ÇÏ¿´´Ù.
¡á Ŭ·¡½º·ë
- ÀÔ±¸´Â ¾ÆÄ¡ÇüÀ¸·Î Á¦ÀÛÇÏ¿© ¾Æ´ÁÇÏ°í ºÎµå·¯¿î À̹ÌÁö·Î ¿¬ÃâÇÏ¿´´Ù.
- ¹Ù´ÚÀº Ä«ÆêÆÐÅÏÀÇ µ¥ÄÚŸÀÏ·Î ½Ã°øÇÏ¿© Â÷ºÐÇÏ°í Æí¾ÈÇÑ ºÐÀ§±â¸¦ ¿¬ÃâÇÏ¿´´Ù.
- Ã¥ÀåÀº Â÷ºÐÇÑ Ä÷¯·Î ½ÉÇÃÇÏ°Ô ¿¬ÃâÇÏ¿´´Ù.
- ¹æÈ¹®°ú ºÐÀüÇÔ »ö»óÀº ¼Ò¶ó»ö Ä÷¯·Î ÅëÀϰ¨À» ÁÖ¾ú´Ù.