
C O N C E P T ¢º ÆÛÇà ÀÎÅ׸®¾î
ÆÛÇà Ä÷¯¸¦ ÁÁ¾ÆÇϴ Ŭ¶óÀÌ¾ðÆ®¸¦ À§ÇÑ ÀÎÅ׸®¾î.
ÈÀÌÆ® Ä÷¯ º£À̽º¿¡ ÆÛÇà Ä÷¯¸¦ Æ÷ÀÎÆ®·Î ÇÏ¿© ¸ð´øÇϸ鼵µ ¼¼·ÃµÈ ´À³¦À¸·Î ¿¬ÃâÇÑ °ø°£.
ÀÛÀº °ø°£¿¡ Ä÷¯·Î Æ÷ÀÎÆ®¸¦ ÁÖ¾î Æ¯º°ÇÑ ´À³¦ÀÇ °ø°£À¸·Î ¿Ï¼ºÇÏ¿´´Ù.
¸Å·ÂÀûÀÎ Ä÷¯, ÆÛÇà ÀÎÅ׸®¾î¸¦ »ìÆìº¸ÀÚ.

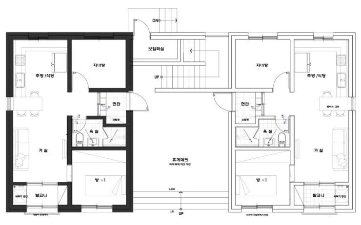
2ÃþÀ¸·Î ÁöÀº ûÁÖ Àü¿øÁÖÅÃ!
¿Ü°ü 3D ÄÆ
¡Ú
1ÃþÀº ¾çÂÊÀ¸·Î 2¼¼´ë, 2Ãþ¿¡ 1¼¼´ë°¡ ÀÖ´Â ÁýÀÔ´Ï´Ù
ÇѰ¡Á·ÀÌÁö¸¸ ¶Ç ¼¼°¡Á·À̱⵵ ÇÑ ÁÖÅÃÀÇ Æ¯¼ºÀ» °í·ÁÇÏ¿©
Çö°ü¹®Àº ÃÑ 3°³·Î °¢°¢ µ¶¸³¼ºÀ» ÁÖ¾ú°í,
¼¼´ëº° °£¼·ÀÌ ¾øµµ·Ï 1Ãþ µÎ¼¼´ë´Â ¸Ö¸® ¶³¾îÆ®¸®°í
¶³¾îÆ®¸° ±× »çÀÌ °ø°£À» ÀÌ¿ëÇÏ¿© 3¼¼´ë°¡ ¸ðµÎ ¸ðÀÏ ¼ö ÀÖ´Â ¼ÒÅëÀÇ °ø°£À» ¸¸µé¾ú½À´Ï´Ù.
1Ãþ ¼¼´ë ¼Ò°³Çص帳´Ï´Ù :)

<1Ãþ-(L)>

¡á Çö°ü
- °í±Þ½º·¯¿î À̹ÌÁö¸¦ ¿¬ÃâÇϱâ À§ÇÏ¿© ¸ÞÅ»°ñµåŸÀÏÀ» »ç¿ëÇÑ Çö°ü.
- ½Å¹ßÀåÀº Àüü °Å¿ï µµ¾î·Î ½Ã°øÇÏ¿© ½Ç¿ë¼ºÀ» ³ôÀÓ°ú µ¿½Ã¿¡ ¸ÞÅ» ŸÀϰú Àß ¾î¿ì·¯Áö°Ô ÇÏ¿´´Ù.
- Çö°ü Á¶¸íÀº ¸Å¸³ÇÏ¿© ¸ð´øÇÏ°Ô ¿¬Ãâ.

¡á °Å½Ç
- ¸éÀûÀÌ ³ÐÁö ¾ÊÀº °Å½Ç.
TV¿ù ÂÊ¿¡ µµ¾î°¡ ÀÖ¾î ÀÚÄ© °Å½ÇÀÌ ´õ¿í Á¼°Ô ´À²¸Áú ¼ö ÀÖ¾î, µµ¾î¸¦ ¾ÆÆ®¿ù°ú ¿¬°á µÈ ´À³¦À¸·Î ½Ã°øÇÏ¿© °Å½ÇÀ» º¸´Ù ³Ð¾îº¸ÀÌ°Ô ¿¬Ãâ.
- ¾ÆÆ®¿ùÀº ÈÀÌÆ® Ä÷¯¿¡ »ç¼±À¸·Î µðÀÚÀÎÀ¸·Î ÁÖ¾î ¼¼·ÃµÈ ´À³¦À¸·Î ¿¬ÃâÇϰí, »óºÎ °£Á¢ Á¶¸íÀ¸·Î ½ÉÇÃÇÏ°Ô ¸¶°¨.
- ½ÉÇÃÇϸ鼵µ À¯´ÏÅ©ÇÑ À°°¢ Á¶¸íÀ¸·Î »ç¼±ÀÇ ¾ÆÆ®¿ù µðÀÚÀΰú Àß ¾î¿ì·¯Áöµµ·Ï ÇÏ¿´´Ù.

¡á ÁÖ¹æ
- µ¶Æ¯ÇÑ µöÆÛÇà Ä÷¯ÀÇ ½ÌÅ©´ë ½Ã°øÀ¸·Î ÀÌÁý¸¸ÀÇ ¾ÆÀ̵§Æ¼Æ¼¸¦ °Á¶ÇÑ ¼¼·ÃµÈ ´À³¦ÀÇ ÁÖ¹æ.
- Áֹ濡 °¡º®À» ¼¼¿ö ³ÃÀå°í ¿·¸éÀ» °¡¸²°ú µ¿½Ã¿¡ ÆÛÇà Ä÷¯·Î ¸¶°¨ÇÏ¿© µðÀÚÀÎÀû ¿ä¼Ò·Î Ȱ¿ë.
»óºÎ¿¡´Â LED ½Ã°è¸¦ ¼³Ä¡ÇÏ¿© ¼¼·ÃµÈ ´À³¦À¸·Î ¿¬ÃâÇϰí, º®Ã¼ ¾ÈÂÊ¿¡ öÆÇÀ» ³Ö¾î Æ÷Åä¿ù·Î Ȱ¿ëÇÒ ¼ö ÀÖµµ·Ï ÇÏ¿´´Ù.
- µöÆÛÇà Ä÷¯ ½ÌÅ©´ëÀÇ ¸ÂÀºÆí ¼ö³³ÀåÀº °úÇÑ ´À³¦ÀÌ µéÁö ¾Êµµ·Ï ±×·¹ÀÌ Ä÷¯·Î ½Ã°ø.
¾îµÎ¿î º¸¶ó»ö°ú ±×·¹À̰¡ ¹Í½ºµÈ ´À³¦ÀÇ ÁÖ¹æÀº Â÷ºÐÇϸ鼵µ ¼¼·ÃµÈ ´À³¦À» ÁØ´Ù.

¡á ¹æ
- ÀÛÀº¹æ¿¡´Â ½ÌÅ©´ë¿Í °°Àº Ä÷¯ÀÎ µöÆÛÇà Ä÷¯ÀÇ ºÙ¹ÚÀÌÀåÀ» ½Ã°ø.
- ¾È¹æÀº ¶óÀÌÆ® ÆÛÇà Ä÷¯ º®Áö¸¦ ½Ã°øÇÏ¿© Æí¾ÈÇϰí Â÷ºÐÇÑ ´À³¦À¸·Î ¿¬Ãâ.

¡á ÈÀå½Ç
- ¹àÀº ÆÛÇà Ä÷¯¸¦ ½Ã°øÇÏ¿© ±Í¿±°í »ç¶û½º·¯¿î ´À³¦À¸·Î ¿¬ÃâÇÑ ¿å½Ç.
¹Ù´ÚÀº ±×·¹ÀÌ Ä÷¯ÀÇ ÆÐÅÏ Å¸ÀÏÀ» Ȱ¿ëÇÏ¿© Â÷ºÐÇϸ鼵µ À¯´ÏÅ©ÇÑ °ø°£À¸·Î ¿¬Ãâ.

¡á ¹ßÄÚ´Ï