¾È³çÇϼ¼¿ä^^ £üÁÖ£üÇ®ÇϿ콺 ÀÎÅ׸®¾î ÀÔ´Ï´Ù.
2015³â Âø°øÇÏ¿© 2016³â º½¿¡ ¿Ï°ø µÈ ûÁÖ Àü¿øÁÖÅà °ÇÃà ÇöÀå!
Ç®ÇϿ콺³× ÁýÀ» ¼Ò°³ÇÕ´Ï´Ù :)


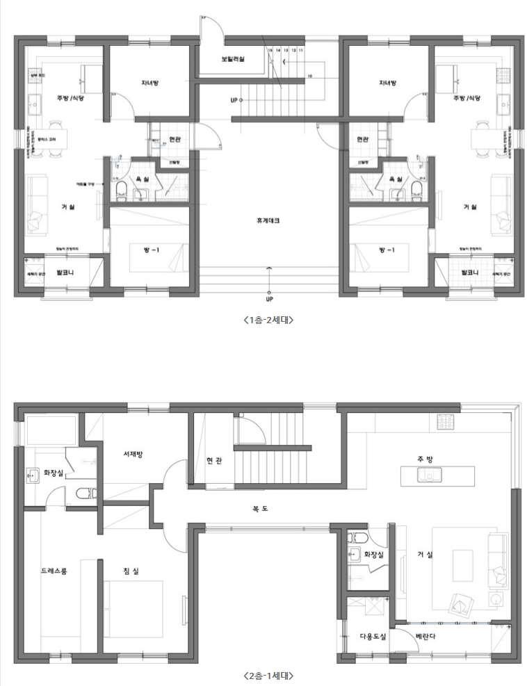
2ÃþÀ¸·Î ÁöÀº ûÁÖ Àü¿øÁÖÅÃ!
¿Ü°ü 3D ÄÆÀÔ´Ï´Ù
¡Ú
1ÃþÀº ¾çÂÊÀ¸·Î 2¼¼´ë, 2Ãþ¿¡ 1¼¼´ë°¡ ÀÖ´Â ÁýÀÔ´Ï´Ù
ÇѰ¡Á·ÀÌÁö¸¸ ¶Ç ¼¼°¡Á·À̱⵵ ÇÑ ÁÖÅÃÀÇ Æ¯¼ºÀ» °í·ÁÇÏ¿©
Çö°ü¹®Àº ÃÑ 3°³·Î °¢°¢ µ¶¸³¼ºÀ» ÁÖ¾ú°í,
¼¼´ëº° °£¼·ÀÌ ¾øµµ·Ï 1Ãþ µÎ¼¼´ë´Â ¸Ö¸® ¶³¾îÆ®¸®°í
¶³¾îÆ®¸° ±× »çÀÌ °ø°£À» ÀÌ¿ëÇÏ¿© 3¼¼´ë°¡ ¸ðµÎ ¸ðÀÏ ¼ö ÀÖ´Â ¼ÒÅëÀÇ °ø°£À» ¸¸µé¾ú½À´Ï´Ù.
¸ÕÀú °£´ÜÇÏ°Ô Áý ±¸Á¶ º¸¿©µå¸®°í ³»ºÎ ÀÎÅ׸®¾î »çÁø ¼Ò°³Çص帮°Ú½À´Ï´Ù.

ÀÌ µµ¸éÀº Á¤½Ä ¼³°è Àü, ÀúÈñ Ç®ÇϿ콺¿¡ º¸À¯Çϰí ÀÖ´Â ÇÁ·Î±×·¥À» ÅëÇØ ±×·Áº» 2Ãþ ±¸Á¶ÀÔ´Ï´Ù.
ÀÌ ÇÁ·Î±×·¥À» »ç¿ëÇÏ¸é ´©±¸³ª ½±°Ô ½ÇÁ¦ »çÀÌÁî¿¡ ¸Â´Â µµ¸éÀ» ±×·Áº¼ ¼ö ÀÖ½À´Ï´Ù.
*ÀúÈñ Ç®ÇϿ콺¿¡¼ ûÁÖ Àü¿øÁÖÅà °ÇÃàÀ» ÁøÇàÇϽøé
°í°´´Ô²²¼ Áý¿¡¼ ÆíÇÏ°Ô ¿©·¯°¡Áö ±¸Á¶¸¦ ±×·Áº¸½Ç ¼ö ÀÖµµ·Ï ÀÌ ÇÁ·Î±×·¥À» ¹«·á ´ë¿©Çص帳´Ï´Ù.

°£ÀÌ µµ¸éÀ» Åä´ë·Î ÇöÀå »óȲÀ̳ª ³»ºÎ ÀÎÅ׸®¾î, °ÇÃà¹ý µîÀ» °í·ÁÇÏ¿©
¼öÁ¤ ÀÛ¾÷À» ÅëÇØ Á¤½ÄÀ¸·Î ÃÖÁ¾ µµ¸éÀ» ¿Ï¼ºÇÏ¿´½À´Ï´Ù.

¿ÜºÎ´Â ¸ð´øÇÏ°Ô µðÀÚÀÎÇϰí
½ÉÇÃÇÑ ¿ÜÇü¿¡ ¸ÂÃß¾î ¸¶°¨Àçµµ ÇѰ¡Áö·Î ÅëÀÏÇÏ¿© ÃÖ´ëÇÑ ½ÉÇÃÇϰÔ! µðÀÚÀÎÇÏ¿´½À´Ï´Ù.
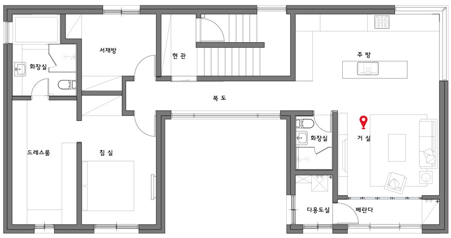
2Ãþ ¼¼´ë ¼Ò°³Çص帳´Ï´Ù. :)

C O N C E P T ¢º ¸ð´ø ÇÁ·»Ä¡ ÀÎÅ׸®¾î.
- ½ÉÇÃÇÔ ¼ÓÀÇ È·ÁÇÔ.

¡áÇö°ü
°è´Ü ÂüÀ» Ȱ¿ëÇÏ¿© ¸¸µç Çö°ü.


- ½Å¹ßÀå : ¼ÕÀâÀ̰¡ ¾ø´Â ÈÀÌÆ® µµ¾î·Î ±ò²ûÇÏ°Ô ¸¶°¨ÇÑ ½Å¹ßÀå.
ÇϺδ ´Ü¶ç¿òÇÏ¿© ÀÚÁÖ ½Å´Â ½Å¹ßÀ» Á¤¸®ÇسÖÀ» ¼ö ÀÖµµ·Ï ÇÏ¿´°í, »óÇϺο¡ °£Á¢ Á¶¸íÀ» ³Ö¾î ±ò²ûÇϸ鼵µ ÀºÀºÇÑ ºÐÀ§±â¸¦ ¸¸µé¾ú½À´Ï´Ù.
- Á¶¸í : ½Ç¹ö Å©¸®½ºÅ»·Î ½ÉÇÃÇÏ¸é¼ È·ÁÇϰÔ!
- Áß¹® : À¯¸®¸¦ Å©°Ô ³Ö¾î ±ò²ûÇÏ°í ½Ã¿øÇÑ ´À³¦À¸·Î ¿Ï¼ºÇÏ¿´½À´Ï´Ù.

¡áº¹µµ
- 1Ãþ 2¼¼´ëÀÇ ÇÁ¶óÀ̹ö½Ã¸¦ À§ÇÏ¿© µÎ¼¼´ë »çÀÌ °£°ÝÀ» ³Ð°Ô ¸¸µå´Â °úÁ¤¿¡¼ »ý±ä ±ä º¹µµ.





- º¹µµ º®Ã¼´Â ¾×ÀÚ¸¦ °É¾î °¶·¯¸® ´À³¦À¸·Î ¿Ï¼ºÇϱâ À§ÇØ ÃÖ´ëÇÑ ½ÉÇÃÇÏ°Ô µðÀÚÀÎÇÏ¿´°í, õÀå¿¡ °£Á¢ Á¶¸íÀ» ½Ã°øÇÏ¿© ¼¼·ÃµÈ ´À³¦À¸·Î ¿Ï¼ºÇÏ¿´½À´Ï´Ù.
- º®Ã¼ ³¡ÂÊ¿¡´Â öÆÇÀ» ³Ö¾î »çÁøÀ» ÀÚÀ¯·Ó°Ô ºÙÀÏ ¼ö ÀÖµµ·Ï ÇÏ¿´½À´Ï´Ù.
- º¹µµ ¾çÂÊ¿¡¼ Ű°í ²ø ¼ö ÀÖ´Â 3·Î ½ºÀ§Ä¡ ¼³Ä¡.
- À̹ÌÁö¿ùÀº ¸¶ºí ŸÀÏ·Î Ç층º» ½Ã°øÇÏ¿© ¼¼·ÃµÈ ´À³¦À¸·Î ¿¬Ãâ.
- Àüü µµ¾î´Â ½ÉÇÃÇÏ°Ô µðÀÚÀÎÇϰí, Å©¸®½ºÅ» ¼ÕÀâÀÌ·Î °í±Þ½º·¯¿î ºÐÀ§±â ¿¬Ãâ.

¡á ¿å½Ç
º¹µµ ³¡¿¡ ÀÖ´Â °ø¿ë ¿å½Ç. (¼Õ´Ô¿ë ¿å½Ç)







- ÈÀÌÆ® & °ñµå ¿å½Ç. ¸¶ºí ŸÀÏÀ» ½Ã°øÇÏ¿© °í±Þ½º·¯¿î ´À³¦À¸·Î ¸¶°¨Çϰí, °ñµå ¿å½Ç Á¦Ç°À¸·Î ·°¼Å¸®ÇÑ ¼Õ´Ô¿ë ¿å½Ç ¿Ï¼º.
- ¼¼¸é´ë´Â Æ÷Æ®¸Þ¸®¿Â Á¦Ç°À¸·Î Æ÷ÀÎÆ®¸¦ ÁÖ¾ú½À´Ï´Ù. ¼¼¸é´ë ÇϺÎÀåÀº ÈÀÌÆ® Ä÷¯ÀÇ ½ÉÇÃÇÑ µðÀÚÀÎÀ¸·Î ½Ã°øÇÏ¿© ±ò²ûÇÏ°Ô ¸¶°¨.
- ¼Õ´Ô¿ë ¿å½Ç Ư¼º¿¡ ¸Â°Ô »ç¿ë ¿©ºÎ¸¦ ½±°Ô È®ÀÎÇÒ ¼ö ÀÖµµ·Ï µµ¾î »óºÎ¿¡ ÀÛÀº âÀ» ³Â½À´Ï´Ù.

¡áÁÖ¹æ
°Å½Ç°ú ¸¶ÁÖº¸´Â ´ë¸éÇü ±¸Á¶·Î ¼³°è. º®Ã¼ ÂÊ¿¡´Â Àüü ¼ö³³ÀåÀ» ½Ã°øÇÏ¿© ³Ë³ËÇÑ ¼ö³³°ø°£ È®º¸.








- ÈÀÌÆ®&½Ç¹ö ÄÁ¼ÁÀÇ ÁÖ¹æ.
Àüü ÈÀÌÆ®ÀÇ ±ú²ýÇÑ ´À³¦¿¡ ¼ö³³ÀåÀº »óºÎ ÈÀÌÆ® °£Á¢Á¶¸íÀ¸·Î °í±Þ½º·´°Ô ¿¬ÃâÇϰí, ¼Òǰ·ù´Â ¼¼·ÃµÈ ´À³¦ÀÇ ½Ç¹ö Ä÷¯·Î Æ÷ÀÎÆ®!
- Èĵå´Â µ¶¸³ÇüÀ¸·Î ½ÉÇÃÇϰÔ! ³ÃÀå°í´Â ¼¼¹Ì ºôÆ®ÀÎ ÇüÅ·Π¸ð´øÇϰÔ! ¿ÀºìÀåÀº ÀÚ¹Ù¶óÀåÀ¸·Î ±ò²ûÇϰÔ!
- ¾ÆÀÏ·£µå ½ÌÅ©´ë
¡¤ ´ë¸éÇü ÁÖ¹æ ¼³°è. µ¿¼±ÀÌ Æí¸®Çϵµ·Ï º®¿¡ ºÙÀÌÁö ¾Ê°í ¶ç¿ö¼ ½Ã°ø.
¡¤ ±×·¹ÀÌ µµÀå µµ¾î+½Ç¹ö ¼ÕÀâÀÌ·Î ½Ã°øÇÏ¿© °í±Þ½º·¯¿î ºÐÀ§±â¸¦ ¿¬Ãâ.
¡¤ ¿ä¸® ½Ã °£´ÜÇÏ°Ô °úÀÏÀ̳ª Àç·á¸¦ ¼¼Ã´ÇÒ ¼ö ÀÖµµ·Ï ÀÛÀº ½ÌÅ©º¼ ¼³Ä¡.
¡¤ ´ëÇü »çÀÌÁîÀÇ ¾ÆÀÏ·£µå ½ÌÅ©´ë´Â ¾çÂÊÀ¸·Î ¼ö³³ÀÌ °¡´ÉÇϵµ·Ï ¼³°è.
- µÞÂÊ º®Ã¼´Â ÈÀÌÆ® ¼ö³³ÀåÀ¸·Î ¸ðµÎ ä¿ì°í ¼ÕÀâÀÌ ¾ø´Â µµ¾î·Î ½ÉÇÃÇÏ°Ô ¸¶°¨Çϰí, ¾ÈÂÊ ¼ö³³ÀåÀº À½½Ä¹° 󸮱⳪ ¾²·¹±âÅë, û¼Ò±â µîÀ» ±ò²ûÇÏ°Ô º¸°üÇÒ ¼ö ÀÖµµ·Ï ÇÏ¿´½À´Ï´Ù.
- ½ÌÅ©´ë ÇϺο¡´Â ½Ä±â¼¼Ã´±â¸¦ ºôÆ®ÀÎÇϰí, â¹® ÂÊÀ¸·Î Å« ½ÌÅ©º¼À» ½Ã°øÇÏ¿© ¼³°ÅÁöÇÒ ¶§ â¹ÛÀ» º¼ ¼ö ÀÖµµ·Ï ¼³°èÇÏ¿´½À´Ï´Ù.
- Äîž ¿·¿¡ ³õ°í ¿ä¸®ÇÒ ¶§ º¸Á¶ ±â±¸·Î »ç¿ëÇϰųª, ¹ÙÄû°¡ ÀÖ¾î ¿þ°ÇÀ¸·Îµµ »ç¿ëÀÌ °¡´ÉÇÑ ºí·ÏÅ×À̺í. (www.coconewyork.com)

¡á°Å½Ç
¹Ý·Á°ß°ú ÇÔ²² »ýȰÇÏ´Â ÁýÀ̱⠶§¹®¿¡ Çʿ信 µû¶ó ¹ßÄÚ´Ï·Î »ç¿ëÇϰųª °Å½ÇÀ» ³Ð°Ô »ç¿ëÇÒ ¼ö ÀÖµµ·Ï Æúµùµµ¾î¸¦ ¼³Ä¡ÇÏ¿´½À´Ï´Ù.



¡à Æúµùµµ¾î¸¦ ´Ý¾ÒÀ» ¶§, ¿¾úÀ» ¶§. Àüü Á¶¸í ON, °£Á¢ Á¶¸í ON.






- °Å½ÇÀº ¸¶ºíŸÀÏ·Î ÅëÀÏÇÏ¿© ½Ã°ø, ±ò²ûÇÏ°í °í±Þ½º·¯¿î ºÐÀ§±â¸¦ ¿¬ÃâÇÏ¿´½À´Ï´Ù.
- °£Á¢ Á¶¸í ¼³Ä¡·Î Á¶¸íºû¿¡ µû¶ó ´Ù¾çÇÑ ºÐÀ§±â·Î ¿¬ÃâÇÒ ¼ö ÀÖµµ·Ï Çß½À´Ï´Ù.
- 2´Ü Å©¸®½ºÅ» Á¶¸íÀ¸·Î ·°¼Å¸®ÇÑ ºÐÀ§±â ¿¬Ãâ. (Á¶¸í ±¸ÀÔ ¹®ÀÇ Ç®ÇϿ콺)
- ¾ÆÆ®¿ù
¡¤ 84ÀÎÄ¡ TV ¼³Ä¡·Î ¾ÆÆ®¿ùÀº ½ÉÇÃÇÏ°Ô µðÀÚÀÎÇϰí, »óºÎ¿¡ °£Á¢ Á¶¸íÀ» ¼³Ä¡ÇÏ¿© ¼¼·ÃµÈ ºÐÀ§±â ¿Ï¼º.
- °¡±¸
¡¤ °Å½ÇÀå : Å©·Ò °Å½ÇÀåÀ¸·Î ¼¼·ÃµÈ ºÐÀ§±â ¿¬Ãâ.
¡¤ ¼ÒÆÄ : ±ò²ûÇϸ鼵µ °í±Þ½º·¯¿î µðÀÚÀÎÀÇ ¿À¹¦ÇÑ ±×·¹À̺û ¼ÒÆÄ·Î ¸ð´ø ÇÁ·»Ä¡ ÀÎÅ׸®¾î ¿Ï¼º.
- õÀåÇü ³Ã³¹æ±â ¼³Ä¡·Î ±ò²ûÇÏ°Ô ¸¶°¨ÇÏ°í °Ü¿ïö ³¹æºñ Àý°¨È¿°ú¸¦ ÁÜ.

¡á ´Ù¿ëµµ½Ç
º¸ÀÏ·¯¿Í ¼¼Å¹±â°¡ ÀÖ´Â ´Ù¿ëµµ½ÇÀÔ´Ï´Ù.
¼¼Å¹¹°À» ²¨³» ¹Ù·Î ³Î ¼ö ÀÖµµ·Ï °ÇÁ¶´ë¸¦ ¼³Ä¡ÇÏ¿´°í, »¡·¡°¡ Àß ¸¶¸¦ ¼ö ÀÖµµ·Ï ¾çÂÊÀ¸·Î Å« âÀ» ³»¾ú½À´Ï´Ù.

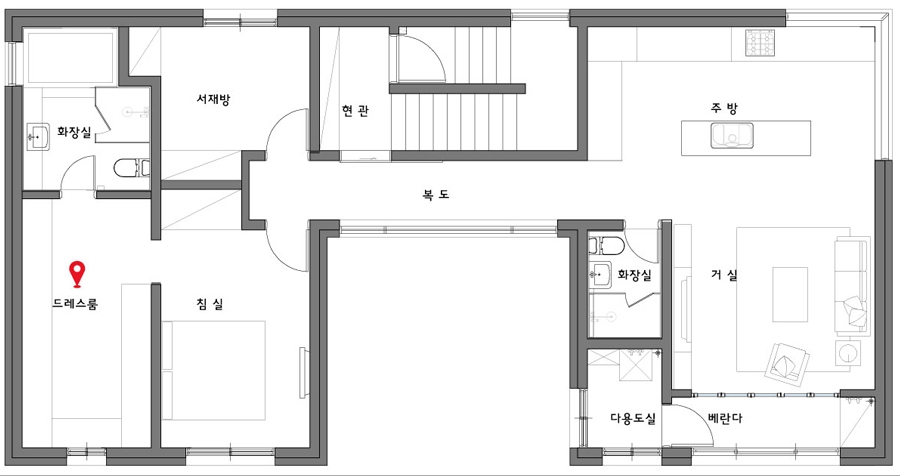
¡á ħ½Ç
ħ½ÇÀº ¾Æ´ÁÇÏ°í Æí¾ÈÇÑ ´À³¦ÀÌ ³¯ ¼ö ÀÖµµ·Ï Á¦ÀÛÇÒ Ä§´ë»çÀÌÁî¿¡ ¸ÂÃß¾î ¹æÀ» ¼³°èÇÏ¿´½À´Ï´Ù.
ħ½Ç°ú ¼Àç¹æ »çÀÌÀÇ º®Ã¼´Â °¡º¯ÇüÀ¸·Î, ÇÊ¿ä½Ã º®Ã¼¸¦ Åͼ »ç¿ëÇÒ ¼ö ÀÖµµ·Ï ÇÏ¿´½À´Ï´Ù.


- Á¶¸íÀº ±ò²ûÇÏ°Ô ¸Å¸³Çϰí, ħ´ë À§¿¡´Â º®Á¶¸íÀ» ¼³Ä¡ÇÏ¿© ¼¼·ÃµÈ ºÐÀ§±â ¿Ï¼º.
- ¸ð´ø ħ´ë ±³Ã¼ ¿¹Á¤À¸·Î, ÀüüÀûÀ¸·Î ±ò²ûÇÏ°Ô µðÀÚÀÎ.
- ÇöÀç °¡º¯Çü º®Ã¼ ºÎºÐÀº º®Ã¼¸¦ ¼¼¿ö ÀÛÀº¹æ°ú ºÐ¸®.
°¡º® ¾ÕÀ¸·Î ¼ö³³ÀåÀ» Á¦ÀÛÇÏ¿© ÀÚÁÖ ÀÔ´Â ¿ÊµéÀ» ¼ö³³ÇÒ ¼ö ÀÖ°Ô Çϰí, ½ºÅ¸ÀÏ·¯µµ ºôÆ®ÀÎ ½ÄÀ¸·Î ±ò²ûÇÏ°Ô ¹èÄ¡.

¡á ¼Àç
- °¡º¯Çü º®Ã¼ ¾ÕÀ¸·Î Ã¥»ó ¹èÄ¡.
- ÈÀå½Ç ¿åÁ¶ ¿· ³²´Â °ø°£À» Ȱ¿ëÇÏ¿© ÀÛÀº¹æ ºÙ¹ÚÀÌÀå ½Ã°ø.

¡áµå·¹½º·ë
¾È¹æ¿¡¼ À̾îÁö´Â µå·¹½º·ë.
ÀÏ¹Ý ¹æÃ³·³ Å« »çÀÌÁî·Î ¼³°èÇÏ¿´°í, Æí¸®ÇÑ µ¿¼±À» À§ÇØ °¡·Î·Î Á¼°í ¼¼·Î·Î ±ä ÇüÅÂÀÇ ¹æÀ¸·Î ¿Ï¼ºÇÏ¿´½À´Ï´Ù.




- µå·¹½º·ë µµ¾î´Â ½½¶óÀ̵ùÀ¸·Î Á¦ÀÛÇÏ¿© °ø°£ Ȱ¿ëµµ¸¦ ³ôÀ̰í, À¯¸® µµ¾î·Î ¾È¹æÀ» Á»´õ ³Ð¾îº¸À̵µ·Ï ¿¬ÃâÇÏ¿´½À´Ï´Ù.
- µµ¾î¿¡¼ Á¤¸éÀ¸·Î º¸ÀÌ´Â µå·¹½º·ëÀÇ ¼ö³³ÀåÀº º¸´Ù ±ò²ûÇÑ ´À³¦ÀÌ ³¯ ¼ö ÀÖµµ·Ï Áø¿Àå ÇüÅ·ΠÁ¦ÀÛÇÏ¿´½À´Ï´Ù.
- º®Áö¿Í Àå ¸ðµÎ ºí·¢À¸·Î ½Ã°øÇÏ¿© ±ò²ûÇÑ ´À³¦À¸·Î ¿Ï¼º.
- »ó°¡ °°Àº ´À³¦À¸·Î ¿Ï¼ºÇϱâ À§ÇØ Á¶¸íÀº ±ò²ûÇÏ°Ô ¸Å¸³. â¹®Àº Ŀư ¼³Ä¡ ¿¹Á¤.
- ¿å½Ç µµ¾î¸¦ Ȱ¿ëÇÏ¿© Àü½Å °Å¿ïÀ» ½Ã°ø, ¹æÀÌ ³Ð¾îº¸ÀÌ´Â È¿°ú±îÁö ÁÖ¾ú½À´Ï´Ù.
- ¿å½Ç ¾Õ ¼ö³³ÀåÀº ÇϺΠ¼¶øÀå, »óºÎ´Â À¯¸®µµ¾î·Î ½Ã°øÇÏ¿© ÇϺδ ¼Ó¿Ê º¸°ü, »óºÎ´Â ¾×¼¼¼¸®¸¦ Áø¿ÇÒ ¼ö ÀÖµµ·Ï ÇÏ¿´½À´Ï´Ù.

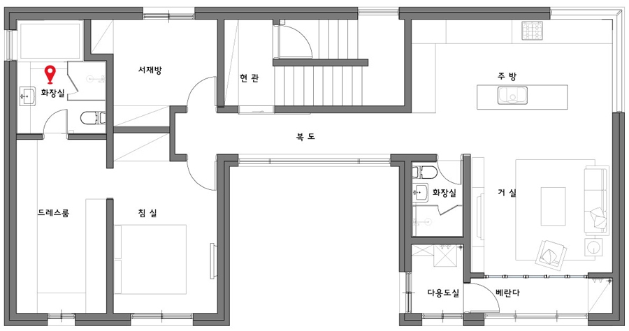
¡áÈÀå½Ç
³Ð°í µ¶Æ¯ÇÑ ±¸Á¶·Î ¼³°èÇÑ ºÎºÎ ¿å½Ç.
µµ¾î ¹Ý´ëÂÊÀ¸·Î º¯±â¸¦ ¹èÄ¡Çϰí, ¿ÞÆíÀ¸·Î ±ä ¼¼¸é´ë¸¦ ¹èÄ¡ÇÏ¿´½À´Ï´Ù.
Á¤¸é¿¡´Â 2ÀÎ¿ë ¿åÁ¶¸¦ ¼³Ä¡Çϰí, ¿À¸¥Æí¿¡ »þ¿ö½ÇÀ» ¼³°èÇÏ¿´½À´Ï´Ù.






- ÀÚ¿¬½º·¯¿î µ¹ ´À³¦ÀÇ Å¸ÀÏ¿¡ ºí·¢ »ö»óÀÇ °¡±¸&¾Ç¼¼»ç¸®¸¦ ´õÇØ È£ÅÚ ´À³¦ÀÇ Æí¾ÈÇÏ°í °í±Þ½º·¯¿î ¿å½Ç ¿Ï¼º.
- ¿åÁ¶´Â 2ÀοëÀ¸·Î ¼³Ä¡Çϰí, ¿åÁ¶ ¿·À¸·Î â¹®À» ½Ã°øÇÏ¿© ¹ÛÀ» ¹Ù¶óº¼ ¼ö ÀÖ°Ô ÇÏ¿´½À´Ï´Ù.
- ¿Âdz ±â´ÉÀÌ Àִ ȯdz±â¸¦ ¼³Ä¡ÇÏ¿© °Ü¿ï¿¡µµ µû¶æÇÏ°Ô ÈÀå½ÇÀ» ÀÌ¿ëÇÒ ¼ö ÀÖµµ·Ï ÇÏ¿´½À´Ï´Ù.
- º¯±â »óºÎ´Â ¼ö³³ÀåÀ» µÎ¾î ÈÞÁö µîÀ» ¼ö³³ÇÒ ¼ö ÀÖµµ·Ï Çß½À´Ï´Ù.
- »þ¿ö½Ç
¡¤ º®Ã¼¸¦ ¼¼¿ö ±ò²ûÇÏ°Ô »ç¿ëÇÒ ¼ö ÀÖµµ·Ï Çϰí, ºÎ½º ÇüÅ·Πµµ¾î¸¦ ´Þ¾Æ µû¶æÇÏ°Ô »ç¿ëÇÒ ¼ö ÀÖµµ·Ï ÇÏ¿´½À´Ï´Ù.
¡¤ ÀÏ¹Ý »þ¿ö±â´Â ¹°·Ð, ÇØ¹Ù¶ó±â »þ¿ö±â, ¹Ùµð »þ¿ö±â·Î »ç¿ëÀÌ °¡´ÉÇÑ ¸¸´É »þ¿ö±â ¼³Ä¡.
¡¤ °í±Þ½º·¯¿î µð½ºÆæ¼ ¹èÄ¡.(www.coconewyork.com)
- ¼¼¸é´ë
¡¤ ÇϺÎÀåÀ» ±æ°Ô Á¦ÀÛÇÏ¿© ¼¼¸é´ë °â ÈÀå´ë·Î »ç¿ëÇÒ ¼ö ÀÖµµ·Ï ÇÏ¿´½À´Ï´Ù.
¡¤ ³Ë³ËÇÑ ¼ö³³ÀÇ ÇϺÎÀå¿¡´Â ¿å½Ç ¿ëǰµéÀ» ¸ðµÎ ¼ö³³ÇÏ¿© È£ÅÚ°°ÀÌ ±ò²ûÇÑ ¿å½ÇÀ» À¯ÁöÇÒ ¼ö ÀÖµµ·Ï Çß½À´Ï´Ù.
¡¤ °Å¿ïÀº ´ëÇü »çÀÌÁîÀÇ ºí·¢ öÁ¦ °Å¿ï·Î ½Ã°øÇϰí, °Å¿ï ¿·À¸·Î ¼±¹ÝÀ» ¼³Ä¡ÇÏ¿© µðÇ»Àú¿Í ÇÔ²² ÈÀåǰ·ù¸¦ ¼ö³³ÇÒ ¼ö ÀÖµµ·Ï ÇÏ¿´½À´Ï´Ù.
¡¤ ºí·¢&ÈÀÌÆ® »ö»óÀÇ ¸éºÀ²ÈÀÌ(www.coconewyork.com) & ½ºÅĵù ÇüÅÂÀÇ Ä©¼Ö²ÈÀÌ·Î °í±Þ½º·¯¿î ¿å½Ç ¿¬Ãâ.