:: ûÁÖ ÁÖÅà ¸®¸ðµ¨¸µ ::

C O N C E P T ¢º °ø°£ÀÇ ¹«±Ã¹«ÁøÇÑ º¯½Å
- ûÁÖ ÁÖÅà ¸®¸ðµ¨¸µ
¶óÀÌÇÁ ½ºÅ¸ÀÏ¿¡ ¸ÂÃß¾î °ø°£À» °èȹÇÑ ÁÖÅÃ.
±âÁ¸ Åõ·ë ÇüÅÂÀÇ µÎ¼¼´ë¸¦ ÇѼ¼´ë·Î ÇÕÃÄ ½ÅÈ¥ÁýÀ¸·Î Ȱ¿ë.
±âÁ¸ °Å½ÇÀ̾ú´ø ³ÐÀº º¹µµ´Â °¡º®À» ¼¼¿ö µå·¹½º·ëÀ¸·Î Ȱ¿ëÇÒ ¼ö ÀÖµµ·Ï ÇÏ¿´´Ù.


¡á ±¸Á¶
- ±âÁ¸ 2¼¼´ë¿´´ø ÁýÀ» 1¼¼´ë·Î ÇÕÃÄ ÇÑÂÊÀº °Å½Ç&ÁÖ¹æÀ¸·Î, ÇÑÂÊÀº ¹æÀ¸·Î ¸¸µé¾ú½À´Ï´Ù.
- ±âÁ¸ µÎÁýÀÇ °Å½ÇÀ̾ú´ø °ø°£ÀÌ º¹µµ°¡ µÇ¸é¼ °ø°£Àº ³ÐÁö¸¸ Ȱ¿ëµµ°¡ ¶³¾îÁ® °¡º®À» ¼¼¿ö °ø°£À» ºÐ¸®, µå·¹½º·ëÀ¸·Î Ȱ¿ëÇÒ ¼ö ÀÖµµ·Ï ÇÏ¿´½À´Ï´Ù.

¡á Çö°ü
- ¿ÞÂÊÁýÀÇ Çö°ü°ú ÈÀå½Ç »çÀÌ °¡º®À» ö°ÅÇÏ¿© Çö°üÀ» º¸´Ù ³Ð°Ô ¼³°èÇϰí, ³²Àº °ø°£Àº â°í·Î Ȱ¿ë.
- ºí·¢ 3¿¬µ¿ µµ¾î¸¦ ½Ã°øÇÏ¿© ¸ð´øÇÑ ºÐÀ§±â·Î ¿¬ÃâÇÏ´Â µ¿½Ã¿¡ °ø°£ Ȱ¿ëµµ¸¦ ³ô¿´´Ù.
- °¡±¸·ù, µµ¾î´Â ¾îµÎ¿î Ä÷¯·Î ¸¶°¨Çϰí, ¹Ù´ÚÀç¿Í º®Ã¼´Â ÈÀÌÆ® ´À³¦À¸·Î ½Ã°øÇÏ¿© ¸ð´øÇÏ°Ô ¿¬Ãâ.
- ¹Ù´ÚÀº Ç층º» ¸¶ºí ŸÀÏÀ» ½Ã°øÇÏ¿© °í±Þ½º·¯¿î ´À³¦À» ÁØ´Ù.

¡á º¹µµ
- Åõ·ëÀ» ÇÕÄ£ Æò¸éµµ. ±âÁ¸ µÎ¼¼´ëÀÇ °Å½Ç °ø°£À̾ú´ø º¹µµ ºÎºÐ¿¡ °¡º®À» ¼¼¿ö µå·¹½º·ëÀ¸·Î Ȱ¿ëÇÒ ¼ö ÀÖµµ·Ï ÇÏ¿´´Ù.

¡á º¹µµ
- Çö°ü¿¡¼ Á¤¸éÀ¸·Î º¸ÀÌ´Â º¹µµ º®Ã¼(µå·¹½º·ë º®Ã¼)´Â ¾×ÀÚ ·¹ÀÏÀ» ½Ã°øÇÏ¿© ±×¸²/»çÁøÀ¸·Î µðÀÚÀÎÀû È¿°ú¸¦ ÁÙ ¼ö ÀÖµµ·Ï ÇÏ¿´´Ù.
- ±âÁ¸ ÈÀå½ÇÀ̾ú´ø °ø°£ ÀϺθ¦ Ȱ¿ëÇÏ¿© â°í·Î Ȱ¿ëÇÒ ¼ö ÀÖµµ·Ï ÇÏ¿´´Ù.

¡á °Å½Ç
- ±âÁ¸ ÁÂÃøÁýÀÇ ¹æ°ú ÁÖ¹æÀ» Ȱ¿ëÇÏ¿© °Å½Ç·Î ¼³°è.
- ¹àÀº Ç층º» ÀåÆÇÀ» »ç¿ëÇÏ¿© Æ÷ÀÎÆ®¸¦ ÁÖ¾ú´Ù.
- ¾ÆÆ®¿ùÀº ¸¶ºíŸÀϰú £Àº ±×·¹ÀÌ ÆÐ³ÎÀ» Ȱ¿ëÇÏ¿© °í±Þ½º·¯¿î ´À³¦À¸·Î ¿¬ÃâÇÏ¿´´Ù.

¡á ÁÖ¹æ
- ±âÁ¸ ÁÂÃøÁýÀÇ ¹æÀ» ÁÖ¹æÀ¸·Î Ȱ¿ë.
- º®Ã¼´Â »óºÎÀå ¾øÀÌ ÈÀÌÆ® ŸÀÏ·Î ¸¶°¨ÇÏ°í ½ÌÅ©´ë´Â Áø±×·¹ÀÌ Ä÷¯¸¦ »ç¿ëÇÏ¿© ¸ð´øÇÑ ºÐÀ§±â¸¦ ¿¬ÃâÇÏ¿´´Ù.
- ¾ÆÀÏ·£µå ½Äʰú ¹ßÄÚ´Ï µµ¾î »çÀÌ¿¡ ÆÄƼ¼ÇÀ» ½Ã°øÇÏ¿© µðÀÚÀÎÀû È¿°ú¸¦ ÁÖ´Â °Í°ú µ¿½Ã¿¡ ½ÄŹ °ø°£À» È®º¸.

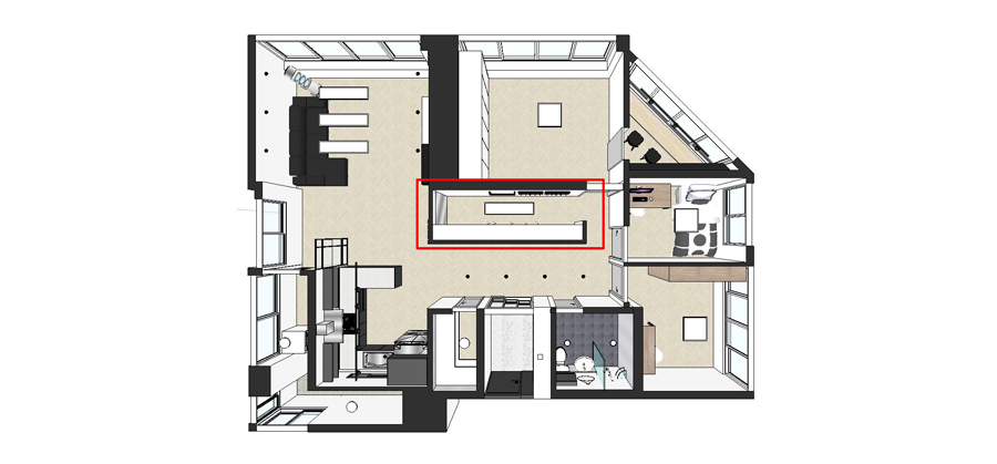
¡á µå·¹½º·ë
- ³ÐÀº º¹µµ¸¦ È¿À²ÀûÀ¸·Î »ç¿ëÇϱâÀ§ÇØ µå·¹½º·ëÀ» ¼³°èÇÏ¿´´Ù.
- ÈÀå´ë¿Í ¿ÀÇÂÇü ¿ÊÀåÀ» ¼³Ä¡ÇÏ¿© È¿°úÀûÀ¸·Î ¼ö³³ÇÒ ¼ö ÀÖµµ·Ï Çϰí, ¸ÂÀºÆí º®Ã¼¿¡´Â ÈÅÀ» ¼³Ä¡ÇÏ¿© ¸ðÀÚ³ª °£´ÜÇÑ ¿Ê°¡Áö¸¦ °É¾îµÑ ¼ö ÀÖµµ·Ï ÇÏ¿´´Ù.
- º®Ã¼ ³¡¿¡´Â Àü½Å °Å¿ïÀ» ¼³Ä¡ÇÏ¿© ½Ç¿ëÀûÀ̸鼵µ Á¼Àº °ø°£À» Á¶±Ý ´õ ³Ð¾îº¸À̰ÔÇÏ´Â È¿°ú¸¦ ÁÖ¾ú´Ù.

¡á ¹æ
- ±âÁ¸ ¿ìÃøÁýÀÇ ¹æÀº ¾È¹æÀ¸·Î Ȱ¿ë.
- ¾È¹æ ¿· â°í·Î »ç¿ëµÇ´ø ÀÚÅõ¸® °ø°£Àº ºÐÀ§±â ÀÖ´Â ¼Àç&Ƽ·ëÀ¸·Î Å»¹Ù²Þ.
- ±âÁ¸ ¿ìÃøÁý °Å½Ç-ÁÖ¹æÀº ÀÛÀº¹æ 2°³·Î ºÐ¸®ÇÏ¿© ¼³°èÇÏ¿´´Ù.

¡á ÈÀå½Ç
- ±âÁ¸ ¿ìÃøÁýÀÇ ÈÀå½Ç/Çö°üÀ» ÇÕÃÄ ³ÐÀº ¿å½Ç·Î Àçź»ý.
- ±×·¹ÀÌ Åæ ŸÀϰú ºí·¢ÀÇ Àå/°Å¿ïÀ» ¸ÅÄ¡ÇÏ¿© ¸ð´øÇÏ°Ô µðÀÚÀÎÇÑ ¿å½Ç.

¡á ¹ßÄÚ´Ï